RU
+38 0897 202 897
Для замовлень в м. інше місто
Пн-Пт 9:00-18:00
інше місто
Вибрати автоматично
Варшава
Івано-Франківськ
Київ
Луцьк
Львів
Одеса
Рівне
Тернопіль
Черкаси
Ваше місто інше місто?
Увійти
дизайн-студія інтер'єру

Гранатовий сон на зефірній хмарині. Спальня

BASE
0.00
-0%
0.00
Економія 0.00
Основна задача:
Оформлення спальні в стилі сучасна класика.
Зробити це приміщення максимально красивим і елегантним, насиченим цікавими елементами і спонукаючим до відпочинку і релаксу. 
Характеристики

Категорія
Дата
Вересень 2022
Стиль
Мансарда
Без мансарди
Площа
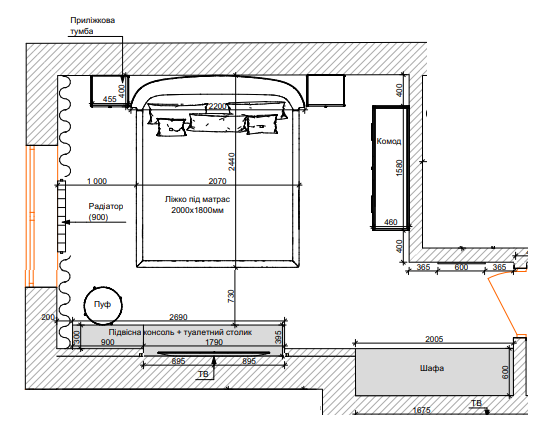
18.51 м.кв
Опис
В нашому швидкому і шаленому світі важливо в своїм домі мати місце, де ти можеш усамітнитися і відпочити.
А для сучасної і сильної жінки важливо окрім відпочинку і розслаблення відчути ще й і спокій.  

Кімната виконана в бежевих кольорах, які часом мають легкий відтінок гранатового.
Кольори підбиралися приглушені, пастельні, теплих відтінків.
Основним декоративним елементом кімнати є стіна за ліжком.
Саме вона розповідає нам основну історію, а всі інші елементи меблів і декору служать доповненням.
Фотошпалери з гранатами - визначають кольорову основу і легку казковість.
Цікаво виглядають на стіні за ліжком великі декоративні молдінги Orac.
Завдяки незвичному розміщенню і нанесенню штукатурки, вони виглядають як складки тканини, що спадає з стелі.

Кімната має не зовсім правильну форму, але ми виправили це завдяки молдінгу, опуску і пофарбуванню стелі і стін в різний колір, а також планувальному рішенню.
Кожен елемент меблів в цій кімнаті пропрацьований і буде виготовлений на замовлення, для того щоб їх власниця відчувала себе ще більш особливою.
Також маємо тут багато різних груп освітлення.
За допомогою підсвіток, в нічну пору кімната виглядає ще чарівніше.

Основні матеріали:
Стіни і стеля - фарба, декоративна штукатурка, МДФ панелі, молдінги Orac, декоративні металеві профілі.
Підлога- широкоформатний керамо-граніт.
Всі меблі - виготовлені на замовлення.
Освітлення - точкові світильники, підвісні лампи, LED підсвітки.

На сайті студії Інтер'єр-Ідея представлено виключно роботи наших дизайнерів.
Інтер'єр-Ідея - дизайн інтер'єру в м. інше місто, online.